
"ARCHITECTURE PORTFOLIO"
These are the selected projects that I did during my degree studies.
2019 - 2021
PAM LEARNING CENTRE
In this project, the assigned task is to design a medium-scale PAM Learning Hub (an annex building associated with the PAM Centre), which is situated in the city center of Kuala Lumpur.
17/04/2021
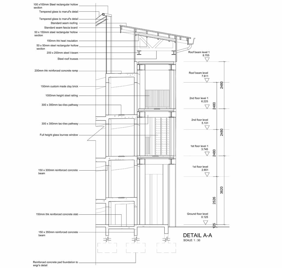
THE TALENT HOTEL
In this project, the assigned task is to design a medium-scale urban green hotel in heart of the city of Kuala Terengganu, within walking distance to the important landmarks of the city such as the Istana Maziah, Pasar Payang and Bukit Puteri, and adjacent to the Kuala Terengganu waterfront.
14/09/2020
shadow of the estaury
In this project, the assigned task is to generate an urban intervention proposal, conditoned with a pre-determined waterfront site as know as Pesisir Payang in Kuala Terengganu. The urban intervention shall pinned point in between entire strech of promenade that bordering the reclamation territory of Pesisir Payang.
29/06/2020
The Ripple is a visitor center loacated at little India, Brickfield, Malaysia. This vistior center give people a very special experience because it’s not build for visual, but for human other 4 senses which is touch, smell, hear and taste. Because the intention of this visitor center is for normal people to experiencing blind in the dark at the same time raise the awearness of blind facility in the Brickfield or whole Malaysia.
18/01/2020
The Lost Taste is born out of a desire to reduce the impact of transformation of the city affect to little India. A streamline form is purpose with the idea of minimize the impact to the site which in a compactible form and merge to the site. The extension of the roof from the ground level act as a "bridge" which provide an access at the same time.
15/11/2019
PAM BOOTH EXHIBITION 2019
Best booth gold award
"M∞" is a hybridization of facade styles depicted from two local iconic modernism architectures across past and current period. Design intention of "M∞" incorporates how facade being redefined over the year, through positive conversion known as transformation, asseverating the theme of exhibition.
07/10/2019
The project is located at Hulu Langat Batu 14 , its a worker house specially design for the brother worker. at the same time, the site will be a facility park such as playground and sport for the worker and the community to having activities and chitchatting in this area.
04/09/2019
Digital artwork
04/09/2019

"Sustainable Living."

"The.Spot"
Some of the sketches that I did during my degree studies.
2019-2020
















































































































































